How many Basements are there at Emaar Colonnade?
- Harpreet Thukral

 - Mar 10, 2023
 - 1 min read
 

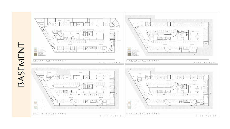
There are a total of 4 basement levels dedicated to services and parking spaces. Ample parking is available for the entire building. The interesting fact is that 2 basements are completely dedicated to retail, while 2 are dedicated to Office Spaces.



Comments